Экономим, заботясь об экологии с системой рекуперации тепла
Уже сегодня внимание, которое вы уделите энергоэффективности, сэкономит большие деньги вашему бизнесу, а завтра принесет существенную выгоду. Как в этом может помочь установка системы утилизации тепла на ваш компрессор, расскажем в этой статье.
Тепло — ценная энергия.
Энергоэффективность и энергосбережение — одни из ключевых понятий обеспечения результативности бизнеса. При этом именно промышленность и многие виды среднего и малого бизнеса в первую очередь пожинают плоды нерационального использования ресурсов, а это отрицательно сказывается на себестоимости их продукции или услуг. Потому что любой бизнес строится на балансе доходов и издержек производства, в число которых обязательно входят затраты на потребляемую энергию — будь то тепловая, электрическая или любая другая. Чем меньше издержки, тем больше шансов, что ваш бизнес будет процветать.
Рассмотрим такой вид энергии как тепло. Сначала мы платим за электропитание охлаждающих вентиляторов и кондиционеров, затем за выработку дополнительного тепла для горячей воды, систем отопления и прикладных процессов на других участках предприятия. Это нерационально. Тепло – это не отходы производства, а ценная энергия.
В воздушном винтовом маслозаполненном компрессоре в процессе сжатия основная часть тепловой энергии передается маслу. В компрессоре, не оборудованном системой утилизации тепла охлаждение масла осуществляется окружающим воздухом в масляном теплообменнике. Таким образом вся тепловая энергия компрессора отводится в окружающую среду, не выполняя ни какого полезного действия.
Как видно из диаграммы распределения энергии в винтовом воздушном компрессоре (Рис.1), 72% энергии, рассеиваемой в масляном радиаторе, можно использовать для нагрева воды. При этом воду можно нагревать до температуры 80°С.
Рис.1. Диаграмма распределения энергии в винтовом воздушном компрессоре.
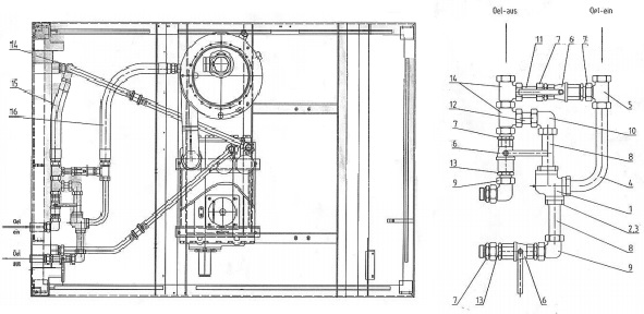
Для реализации данного решения используется дополнительный теплообменник «масло-вода» в масляном контуре винтового компрессора.
Рис.2. Теплообменник «масло-вода» в масляном контуре винтового компрессора
Существует два пути модернизации компрессора для установки данного устройства:
1. Внутреннее исполнение.
2. Отдельно стоящее устройство.
Срок окупаемости устройства, в зависимости от выбранного типа модернизации, может составлять
от 3 до 5 месяцев.
ПРИМЕРЫ ИСПОЛЬЗОВАНИЯ РЕКУПЕРАЦИИ ТЕПЛА ВОЗДУШНОГО КОМПРЕССОРА
Рис.3. Системы рекуперации тепла для отопления помещений и технологических нужд
Рис.4. Бытовые потребности (рукомойники, душевые, кухни, прачечные…)
Как это работает
Системы рекуперации тепла обеспечивают максимальную эффективность путем извлечения энергии, вырабатываемой в процессе производства сжатого воздуха. Современная закрытая конструкция винтовых компрессоров прекрасно подходит для рекуперации тепла, в особенности при непосредственном отводе излучаемого тепла через канальные системы. Система позволяет заново использовать до 90% энергии. Термостатический контроль поддерживает заданную температуру в компрессоре.
Утилизационный теплообменник представляет собой пластинчатый нержавеющий паяный теплообменник масло (греющая среда)/вода (нагреваемая среда) установленный в масляный контур. В масляный контур передается 74% потребляемой мощности двигателя. Установка утилизационного теплообменника позволяет всю эту энергию использовать на подогрев воды, что является прямой экономией энергоресурсов.
Диапазон температур подогреваемой воды
Пример показателей по утилизируемой мощности
| Мощность компрессора, кВт | 30 | 37 | 45 | 55 | 75 | 90 | 110 | 132 | 160 | 200 | 250 |
| Энергосбережение, кВт | 26 | 32 | 37 | 48 | 67 | 78 | 95 | 114 | 120 | 150 | 188 |
Пример технических характеристик утилизационного комплекта для компрессора 250кВт
| Наименование | Показатель |
| Мощность компрессора | 250 кВт |
| Утилизируемая мощность | 188 кВт |
| Температура входящей воды | 25°С |
| Температура исходящей воды | 45°С |
Комплект поставки:

Модуль рекуперации тепловой энергии может быть установлен на любые модели компрессоров и на любом этапе работы компрессорного оборудования. Таким образом, компрессор с системой утилизации тепла может стать весьма выгодным приобретением.